Addition & Renovation – Jamestown, RI

Project Intro

Size/ Scope:

Full House Overhaul

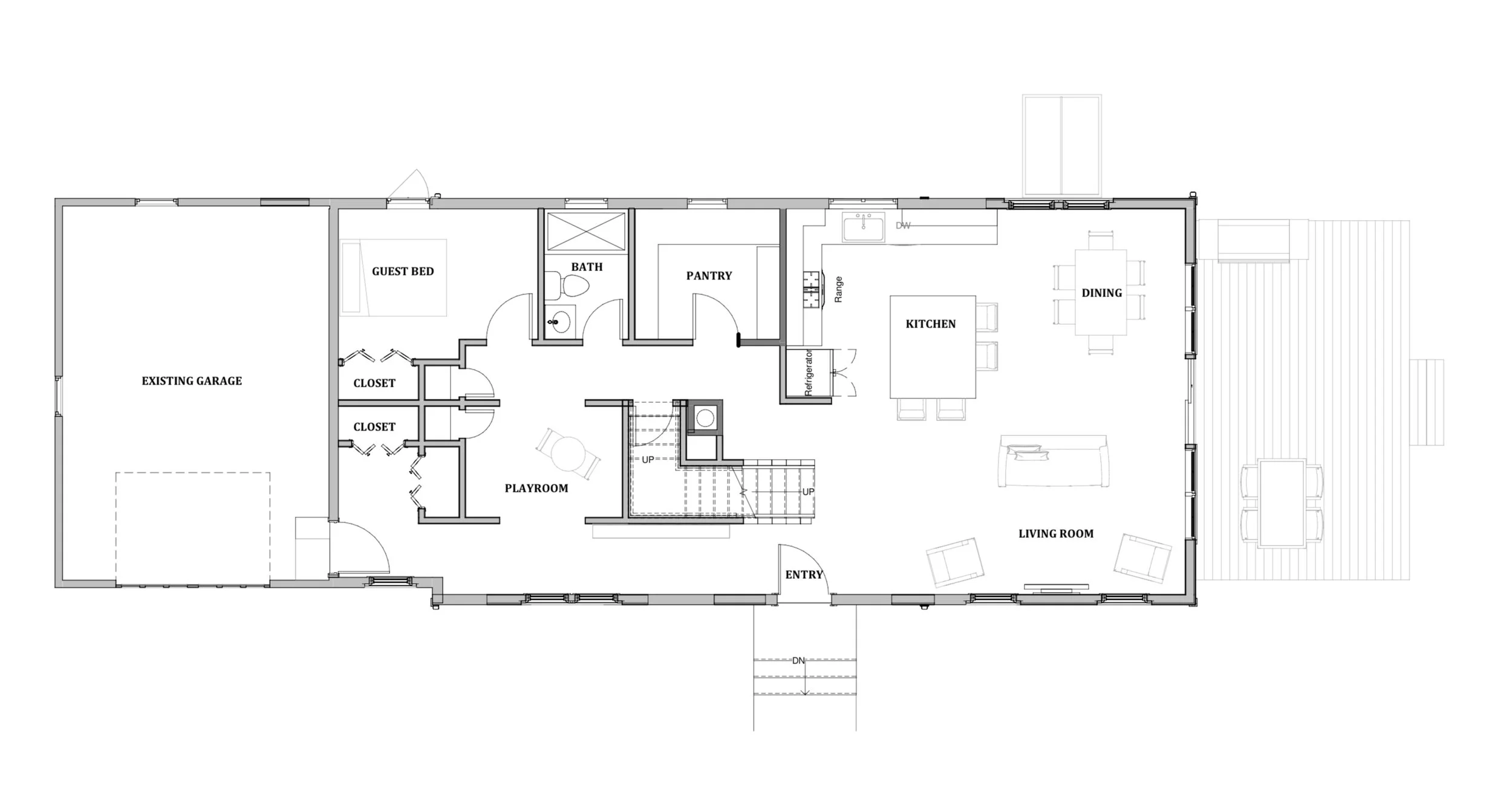
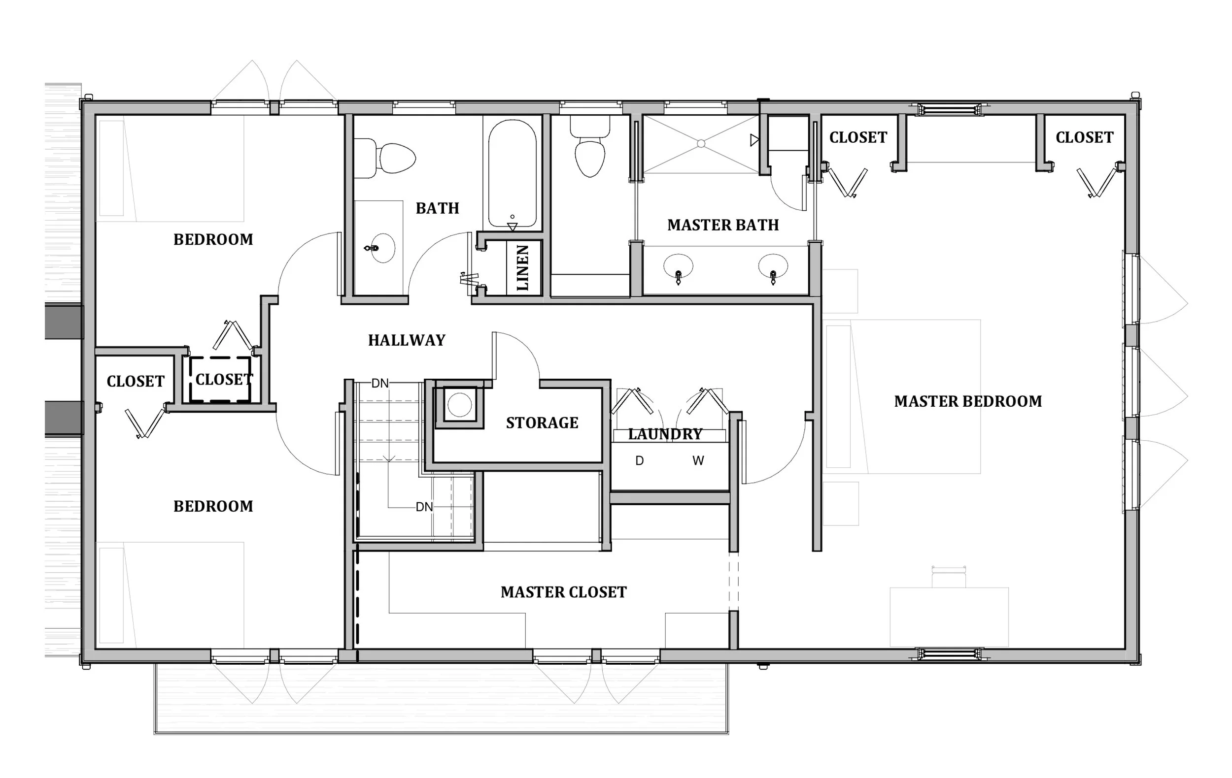
New Second Story Addition (1,060 s.f.) and First Floor Remodel

Project Description:

The project scope for the homeowners was to add a second story addition to their existing home, while modifying the first-floor plan layout to create a cohesive flow and function for the new house as a whole. An exterior design was also created with a focus on the waterfront view, which is shared by the open concept kitchen, living, and dining room on the first floor and the master bedroom suite on the second floor.

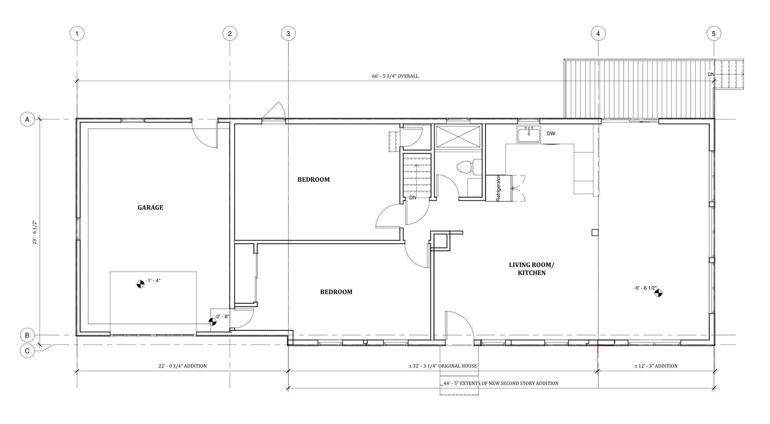
Existing Floor Plan

Existing Conditions

The Design

The Progress

Next
Next

Custom Residence – Hollis, NH