Custom Residence – Hollis, NH

Project Intro

Size/Scope:

New Build House Construction (4,873 s.f.) with Three-Car Garage

Project Description:

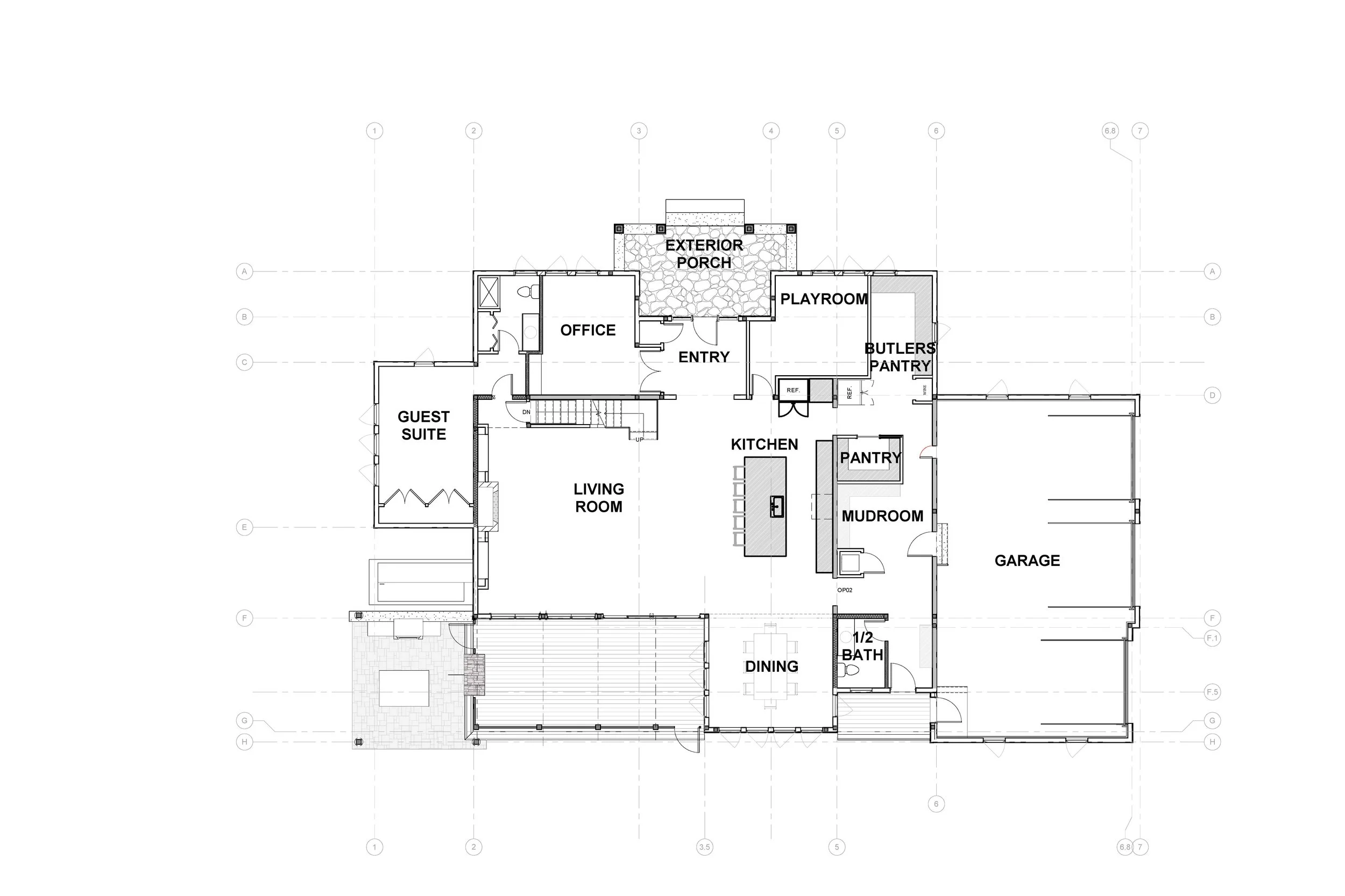
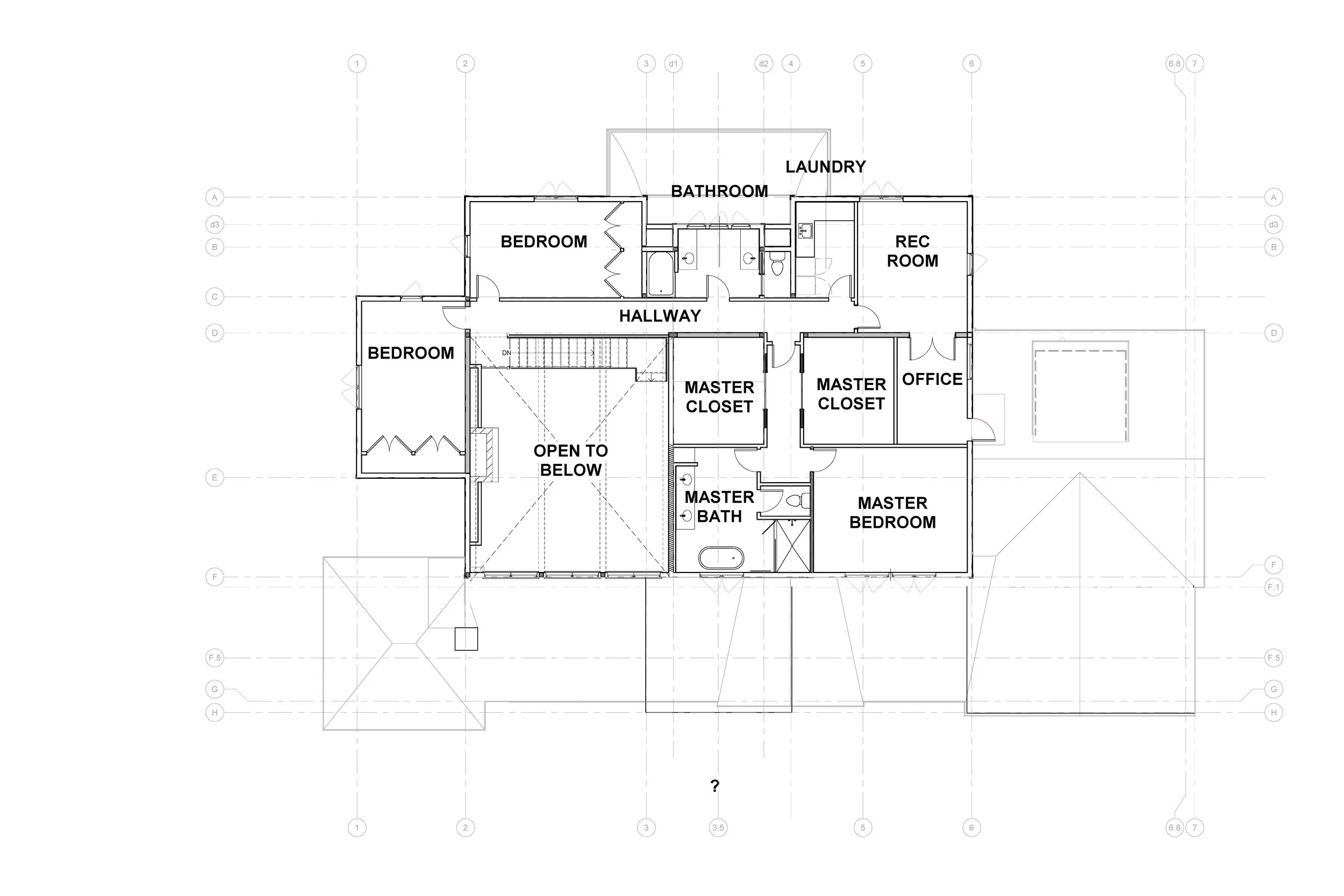
The homeowners’ priority for their fully custom new build house was to achieve the perfect interior flow and function. Views and connections to the exterior, particularly to the backyard, was very important and was achieved throughout the entire first and second levels. High pitched dueling gables and a sloped entry canopy, along with the selection of neutral exterior materials, provides a timeless aesthetic for this dream home.

The Design

Previous
Previous

Addition & Renovation – Jamestown, RI

Next
Next

Addition - Hollis, NH